Перейти к основному содержанию
ОЛЕБРУС
От проекта до воплощения
+7 (929) 847-17-28
olebrus23@mail.ru
Официальный
дилер
Главная
О нас
Технологии
Проекты
Цены
Галерея
Интерьеры
Контакты
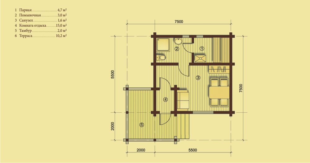
Баня-4
Общая площадь 36,5 кв.м.
Площадь:
37
Планировка: